Blog Nehalem Quaint Nehalem Cottage

Quaint Nehalem Cottage

By Tosha Reinmiller, April 2, 2026

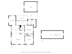
Incredible potential in the heart of Nehalem, this 1938 cottage offers timeless character & a functional layout with clear opportunity to update. The 1,114 sq ft home features 2 bedrooms and 1 bathroom, high ceilings, & abundant natural light. A bright mudroom adds everyday utility, while the formal dining room provides flexibility, easily reimagined as a 3rd bedroom with the dining as an eat-in kitchen. The half-story attic could offer the potential for expanded living space. Located directly across from Nehalem Elementary & just two blocks to the public kayak & fishing dock, the setting supports both convenience & coastal living. Some updates include: vinyl double pane windows & roof installed in 2018, heat pump, water heater, etc. The interior is ready for your vision. Connect with your contractor regarding any renovations and call your broker to schedule a viewing.

🏡 36290 7th Street, Nehalem, OR 97131
List Price: $425,000

MLS#: 532235270
Square Ft: 1,114
Taxes: $1,607.24
Bedrooms: 2
Bathrooms: 1

Call or email for additional details:
Tosha Reinmiller
541-231-5829
tosha@coastlivingre.com

Tosha Reinmiller

Principal Broker | OR

She/Her

ABOUT TOSHA Tosha specializes in the coastal communities of Manzanita, Cannon Beach, Nehalem, Wheeler, Arch Cape, Rockaway Beach and the surrounding areas in Tillamook County. In 2014, she jointly opened the Living Room Realty office in Manzanita, Oregon, with the desire to bring strong company values and culture to her clients at the coast. She understands the importance of client relationships and services. With a design background, she has always been drawn to strong marketing aesthetic and appreciates the value of it. Skills that she possesses, but not limited to—ability to multi-task, great listening skills, drive, detailed-oriented, organized, knowledge of diverse design and aesthetics—are priceless when working as a REALTOR®. For years she worked as an Interior Designer, most recently at Group Mackenzie — she traveled and lived internationally, where she was able to grow creatively. Using her experience as an Interior Designer has prepared her for the various facets of the real estate profession.Embracing modern methods and coupled with a business model grown organically from referrals and past clients allows Tosha to focus her time with clients to help them reach their goals. TOSHA'S APPROACH Tosha's approach to real estate is straight forward: She treats others as she would like to be treated. One question she continually asks herself is: "Is this in the best interest of my client?" Tosha aims to serve the buyers and sellers in Manzanita and surrounding communities with integrity, excellence and honest representation. She prides herself on creating and cultivating lifelong relationships with clients and becoming a resource within the community for years to come.Her goal is to help her clients achieve their real estate goals without taking shortcuts. She is sensitive to a client's unique needs and spends most of day getting to know them and making sure everyone is on the same page with what is most important to them. Tosha strives to provide high-standards for service in terms of timely response, professional behavior, and the customer aspirations. She encourages her clients and community to use her as a resource for market knowledge, pre-selling tips, remodeling, and local events. As your real estate broker, she offers progressive marketing, local knowledge, and expertise. She loves to help people in any way she can and would gladly help you find your coast living room! INTERESTING FACTS ABOUT TOSHA
  • Raised on the North Oregon Coast. Neah-Kah-Nie High School grad
  • Tosha lives on the Nehalem River. She loves hiking, beach & river days, scuba diving, biking...truly, anything outdoors!
  • Tosha's first internship was at SmithCFI, as a commercial furniture designer.
  • After college, she packed her bags and lived/worked in Bilbao, Spain for a few months.
  • Bachelor of Science, Oregon State University, Interior Design
  • Bachelor of Science, Oregon State University, Housing Studies
  • What is Housing Studies?: Along with residential design, it focuses on housing for the elderly, real estate finance, sociological aspects of housing and affordable housing policies.
  • Top 10% of REALTORS® in Clatsop Association of REALTORS® (number of homes sold - 2015, per MLS)
View my Coast Living & Real Estate!
Read More

Contact Tosha

You might also enjoy

RENOVATED HOME ON 0.44 ACRES IN NEHALEM

Tosha Reinmiller

Overlooking the charming town of Nehalem & its scenic valley, this stunning 3 bedroom, 2 bathroom...

3.84 ACRE NEHALEM HOME WITH VIEWS

Tosha Reinmiller

Tucked away in the peaceful forested hills of Nehalem Valley, this 1,693 sq ft home offers...

5 BLOCKS TO NEHALEM BAY

Tosha Reinmiller

Tucked away from the road, this new construction home offers the perfect blend of privacy &...

SPLIT LEVEL W/ SEP. GUEST SUITE ENTRY

Tosha Reinmiller

Enjoy distant Nehalem Valley views from this versatile split-level home ideally located in one of Oregon...