Blog Craftsman Close-In Northeast Gem

Close-In Northeast Gem

By Kim Parmon, June 15, 2024

Vintage Beauty + Fabulous Restoration

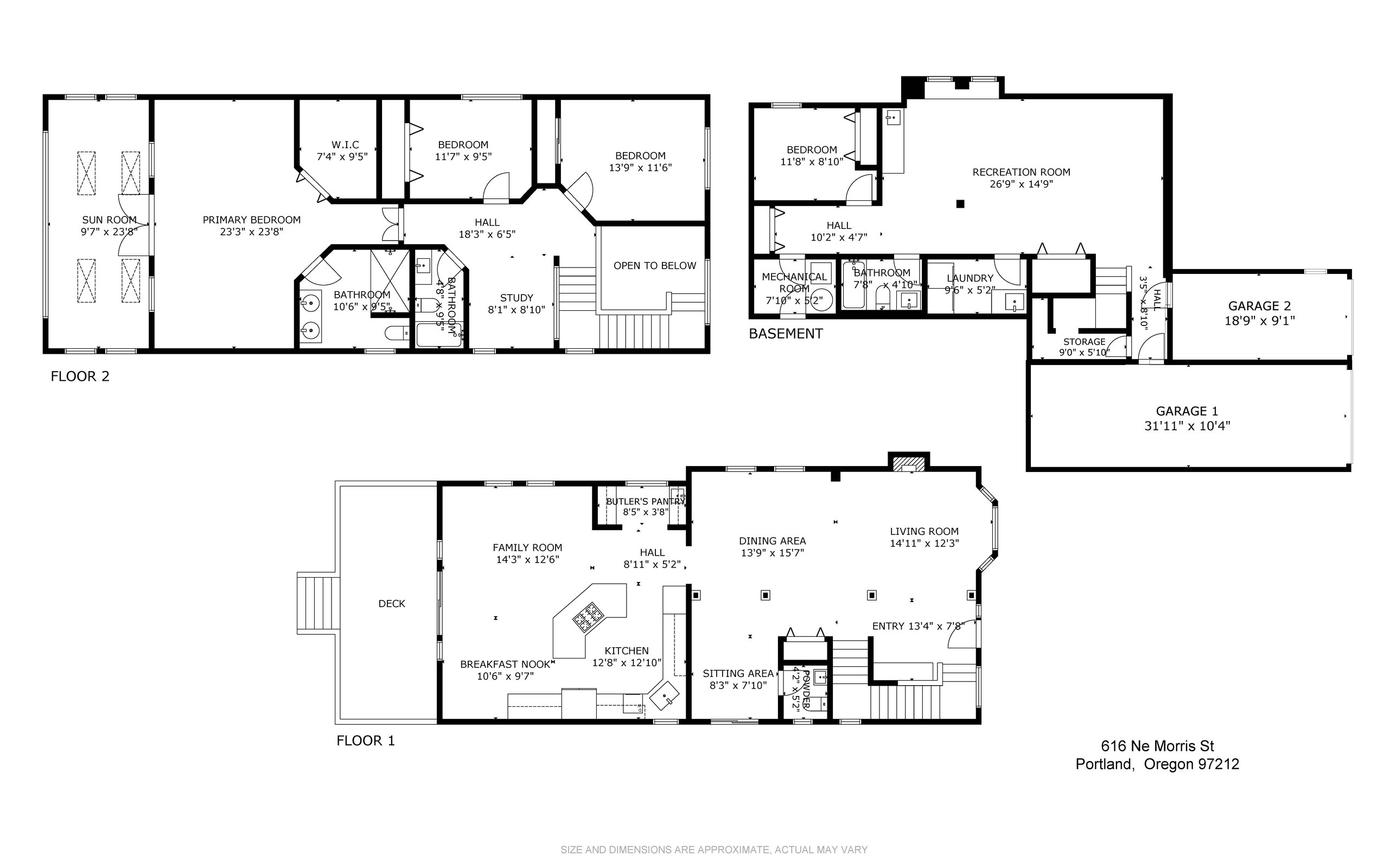
616 NE Morris St.| Portland, OR 97217

Offered at $985,000 | MLS # 24381697

4 Bedrooms  | 3.5 Bath |  3,497 sq. ft.

 

This exceptional property has been lovingly restored with careful attention to detail that keeps the historic character intact while providing a host of modern conveniences. Enter the elegant living and dining room, which feature hardwood floors and a gas fireplace with designer tile and a grand staircase to the second level. Enjoy hosting dinner parties from the large cook’s kitchen with its ample counter space and separate wet bar, which flows into a secondary living space and a large covered backyard deck.

Upstairs, you’ll find an incredible primary suite with walk-in closet, designer ensuite bath with dual-head walk-in shower, and attached sanctuary sun room. Two additional bedrooms, an updated hall bath, and separate sitting area round out this floor.

Downstairs, there is a large family room with wet bar, a fourth bedroom, and full bath.  Utilize this space to host family and friends, or explore converting it into an ADU. It can be accessed from inside the home, the outside entrance, or directly from the convenient garage bays that are separated and private.

Enjoy spending time outdoors in the well-landscaped yard with mature plantings, multiple decks, and relaxing hot tub. Located a block and a half from Irving Park in the Irvington Elementary school district, while also being convenient to all of the hip shops and restaurants in Boise/Eliot that make Portland a fun place to call home. HES=???

 

Walk Through Tour

Kim Parmon

Principal Broker | Earth Advantage Certified | OR

She/Her

Kim Parmon Principal Broker  Lead Listing Agent Earth Advantage Certified | OR kim@livingroomre.com Oregon is the fifth state that Kim has called home in her life, and this one is sticking!  After moving multiple times in her childhood, Kim fully understands how empowering homeownership and having roots is.  She loves waking up every day in this beautiful place and wants everyone to experience what it feels like to live in their dream home. As a kid, Kim spent her free time wandering through open houses and exploring construction sites for the fun of it.  After careers in the professional ballroom dance world, the entertainment industry, and the service industry, Kim stumbled into real estate as both a passion and a profession through the purchase of her first bungalow.  After renovating it with her husband and selling it for enough of a profit to pay off their debt as well as buy a new house to live in, everything clicked: she decided to get her real estate license and help her community experience the emotional and financial benefits of homeownership.  Kim put down roots in Portland in 2015 and has cultivated a referrals-based business throughout the years.  She understands that real estate is a service and the experience she gives her clients is first-rate.  She works hard to anticipate needs.  She is responsive, thorough, empathic, and a skilled negotiator who enjoys market analytics and strategy as much as she enjoys connecting with her clients.  Her ethics and reputation are the cornerstones of her business and the happiness of her clients is the yardstick that she measures success against. Kim merged her business with the best agents in Portland at the beginning of 2022, which has allowed her to give her clients more resources, more advocacy, and a top-notch real estate experience.  She is honored to be a part of her incredible team and feels lucky to go to work every day. In her free time, you'll find Kim enjoying lazy evenings by the fire with her husband, daughter, and rescue dogs.  She loves dancing, live music, exploring all of the beautiful places around us in the PNW, enjoying a cider and a good meal with friends, and browsing Powell's for a great new book. Andee Ziegler  Licensed Broker Listing Operations Manager andee@livingroomre.com Loving where you live will change your life. Everyone deserves that joy. For me, real estate has been a way of nurturing my community and doing what I can to help people find stability, grow generational wealth, and create a little space of their own in the world. For 15 years I found the most joy in helping first-time homebuyers, guiding my peers through their first major investment and dreaming up what home means for them. I’ve done restoration work on homes from a variety of eras, 1894 Victorian farmhouse to classic 1950’s ranch. I enjoy empowering new homeowners with the knowledge I’ve garnered over the years, from systems to finishes.  In 2022 I joined forces with some of the best realtors in the biz and shifted my focus to operation management for listings. This welcome change opened up space in my life: more cake, less pants.   Andee Zeigler | Licensed Listing Operations Manager | andee@livingroomre.com Jessica LeDoux | Lead Buyer Agent | Broker Licensed in Oregon | jessica@livingroomre.com  Sofia Gallamore | Buyer Agent | Licensed in Oregon and Washington | sofi@livingroomre.com Karim Alaeddine | Operations | Principal Broker Licensed in Oregon | karim@livingroomre.com  Jenessa VanZutphen | Buyer Operations Manager | Licensed in Oregon | jenessa@livingroomre.com 
Read More

Contact Kim

You might also enjoy

What Does MLS Stand For & How Does It Work?

Jon Gould-Knight

You might have heard the term "MLS" thrown around when talking about real estate. Maybe you’ve seen abbreviations like RMLS or NWMLS. Maybe you’ve wondered how sites like Zillow actually get their data. So let’s talk about what the MLS actually is, why it exists, and why it matters to you.

Should I Use the Same Realtor to Buy and Sell a House?

Jon Gould-Knight

TL;DR Yes, you can absolutely use the same real estate agent to help you sell your...

Should I wait until mortgage rates drop before I buy?

Jon Gould-Knight

Nobody has a crystal ball, but most projections suggest mortgage rates will stay above 6% for the foreseeable future. Even if they do drop, it’s likely to be a gradual decline, not an overnight plunge.

How to buy a Duplex with FHA 3.5% Down Payment

Living Room Realty

By Sorcha Porter: Licensed Assistant to Shannon Dooley In a time where interest rates are high...

4 Ways to Make Money Off Your Home Without Being a Landlord

Living Room Realty

..Many people don't want to be landlords. Whether it's for ethical reasons or personal landlord-ing is not for everyone. But it doesn't mean you can't use your home to create a side hustle and generate passive or low/ work income.

Cute house with huge back yard!

Living Room Realty

I love all the trees especially the black walnut, fruit trees and raised garden beds. The...

Top Shelf in Tabor

Living Room Realty

1130 NE 64th Ave. Portland, OR 97213 Beautiful move-in ready home in North Tabor. Enjoy time...

BEAUTIFULLY RENOVATED BALL PARC AMERICAN

ARYNE + DULCINEA

JUST LISTED! 2083 NW Johnson Street, Unit 54, Portland, OREGON Welcome home to this exquisite city...

Love Where You Live. Invest in Where We Learn.

Jenelle Etzel

When people choose a home, they are choosing more than square footage. They are choosing a...

7 Simple Updates we made to sell this house in 4 days.

Robin Hakeman

This house didn’t look like this when we first took the listing. It looked more like...

Open House – Everyday Excellence | Redefining Luxury Through Relationship with Yonette Fine

Jenelle Etzel

In this episode of Open House, we sit down with Yonette Fine of Living Room Realty...