Blog home Unicorn Alert! Two Overlook Houses, Side by Side

Unicorn Alert! Two Overlook Houses, Side by Side

By Kim Parmon, February 19, 2026

Best Friend Goals! Be Next Door Neighbors

1820 N. Prescott St. & 1836 N. Prescott St.

Portland, OR 97217

OPEN HOUSE: Feb. 21st, from 12pm-2pm

This opportunity doesn’t come around often: two houses, right next door to each other, both on oversized .17 acre lots, in the desirable Overlook Triangle! For all the folks who have always wanted to live close to family or friends without actually sharing four walls, this is the ideal setup. And the oversized lots with back alley access and R5 zoning make future development a real possibility: make those friend group compound dreams come true! Located just .6 miles from the fun shops and restaurants on Mississippi and a short stroll to the sunset views at Mock’s Crest Park, this location is prime.

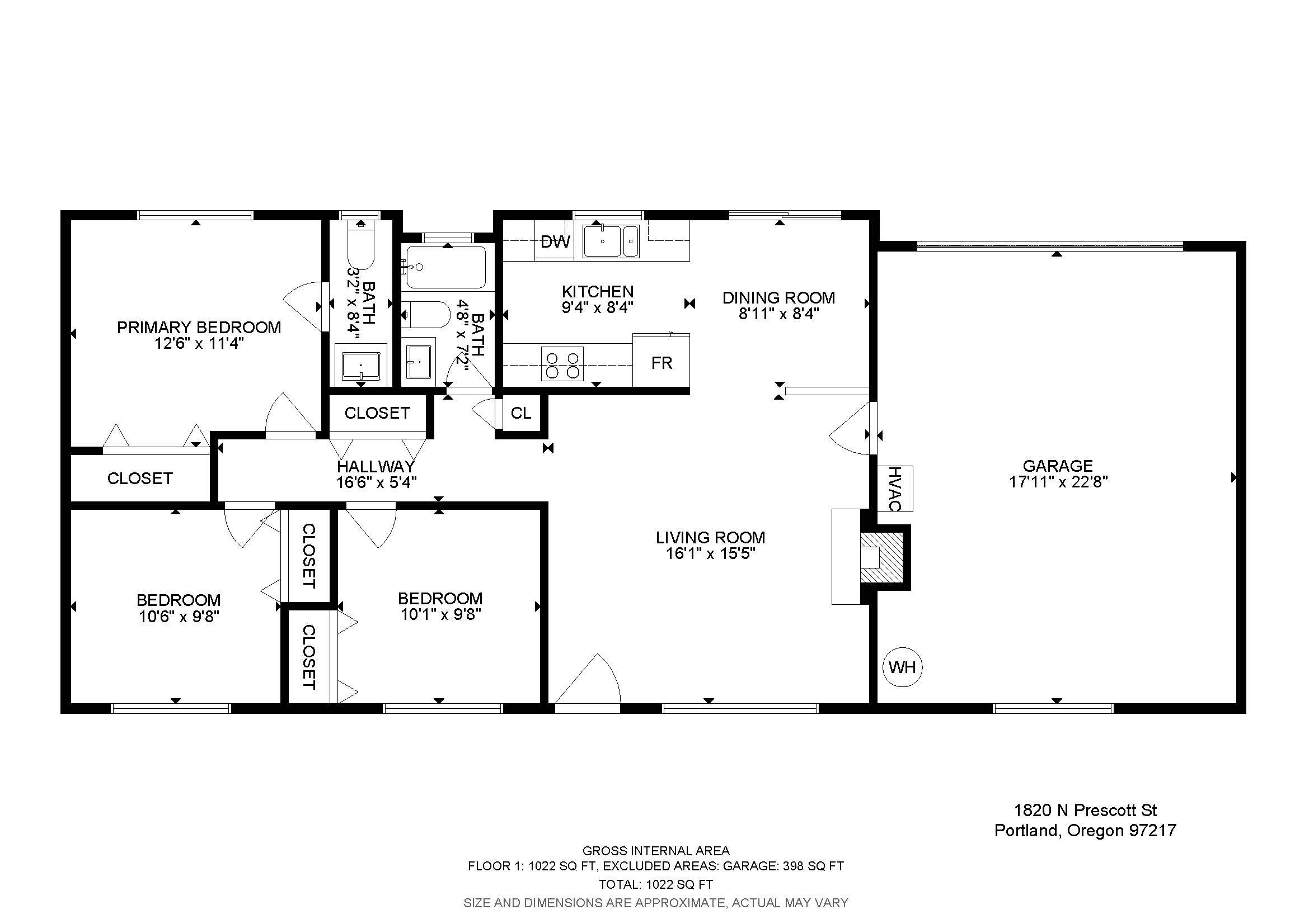
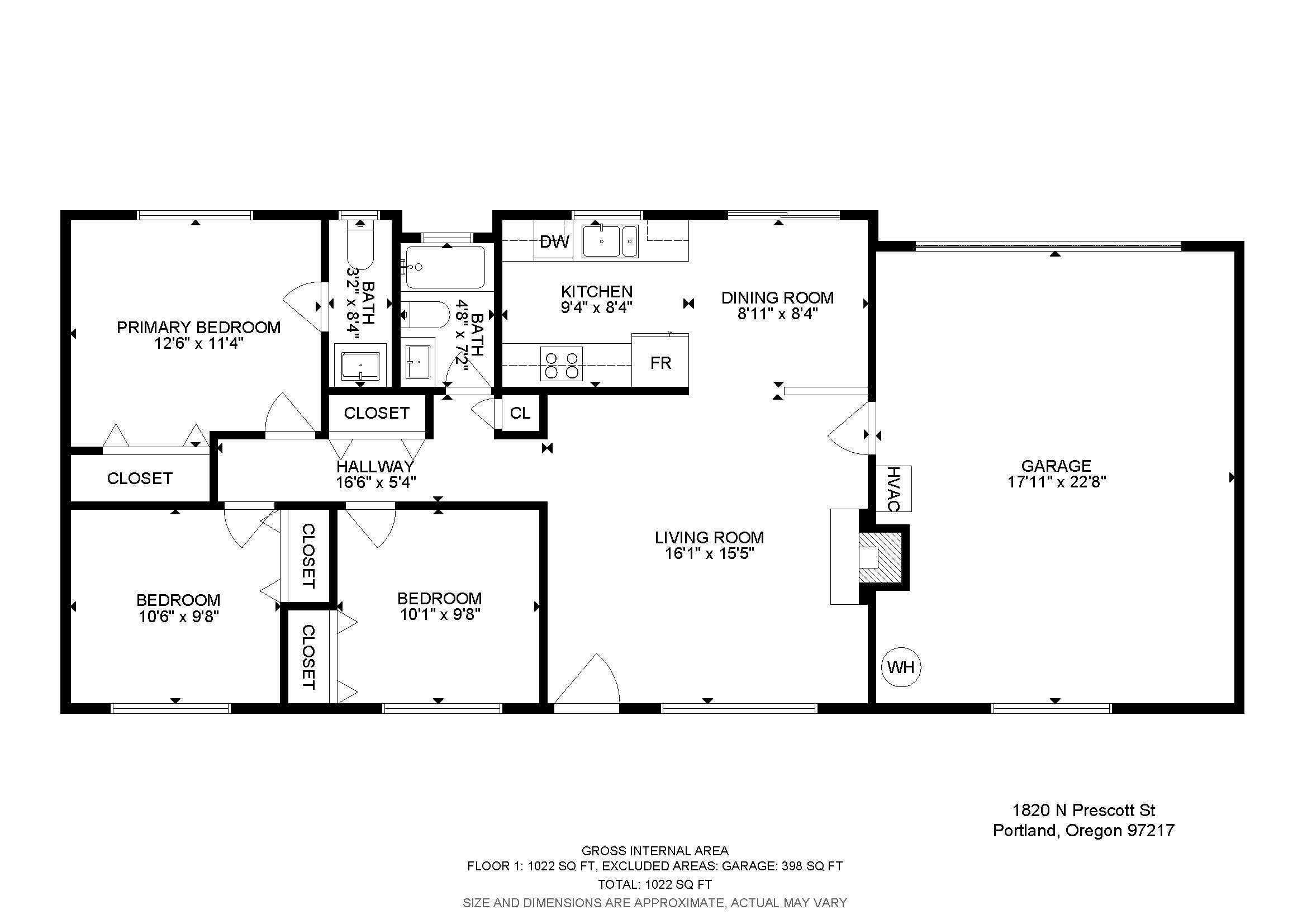
1820 N. Prescott St. | Portland, OR 97217

Offered at $488,000 | MLS # 769978056

3 Bedroom  |  1.5 Bath | 1,700 sq. ft.

One level living in desirable Overlook! This sweet ranch checks all the right boxes- it’s spacious and bright, with a floor plan that flows, and a refreshed kitchen with new appliances and marmoleum floors that looks out over the oversized, fenced backyard.

The living room is both spacious and serene, with a wood burning fireplace for cozy winter evenings in. The three comfortable bedrooms include a primary with updated private ensuite half bath, and the full hall bathroom features marmoleum flooring and an upgraded vanity. The attached two car garage is a rare treat and the perfect place to store your gear, tinker with tools, create a home gym, or simply park and stay out of the rain! Fresh paint, new carpet, and a brand new furnace and a/c are the icing on the cake. HES=6

Matterport Tour

 

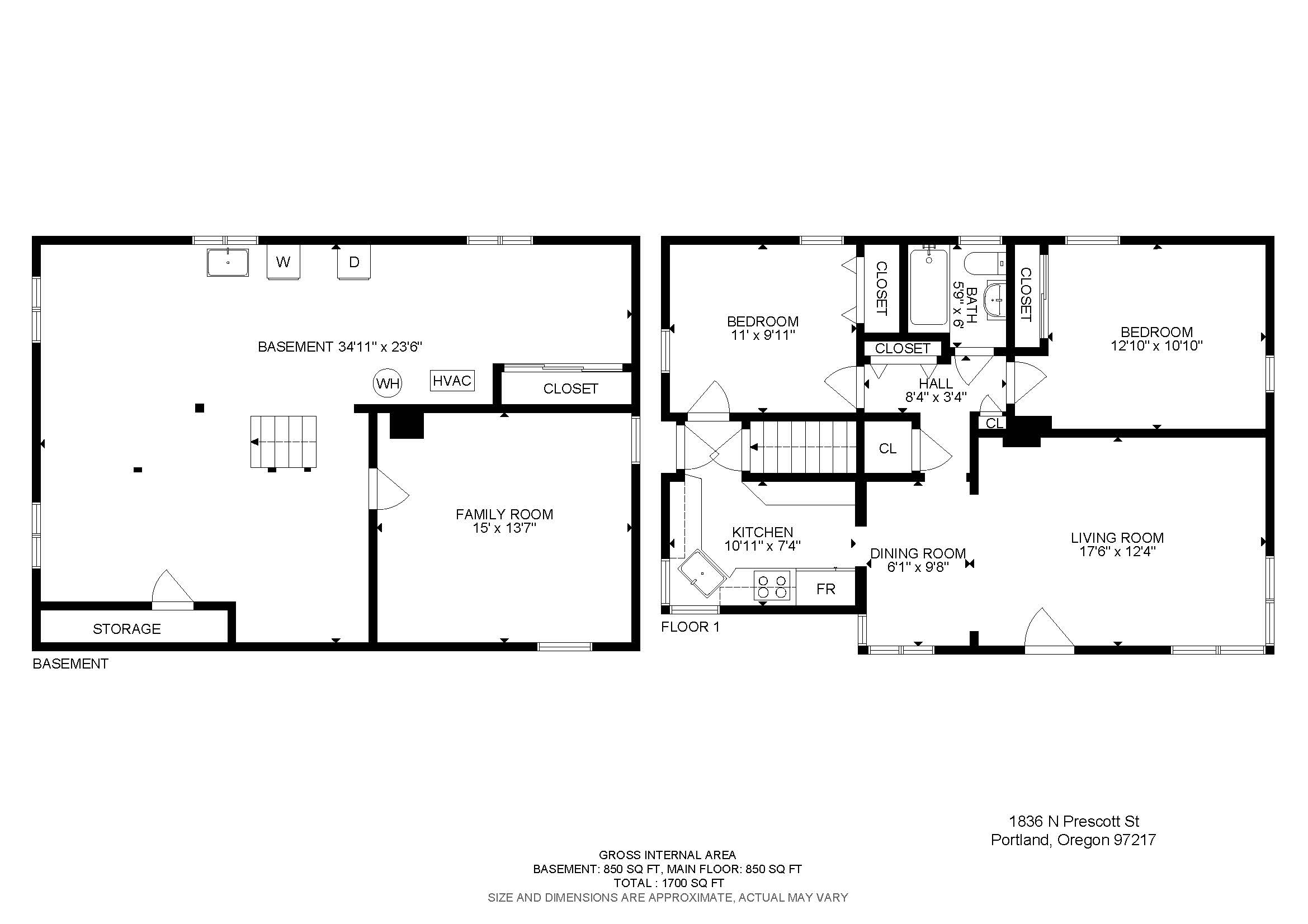
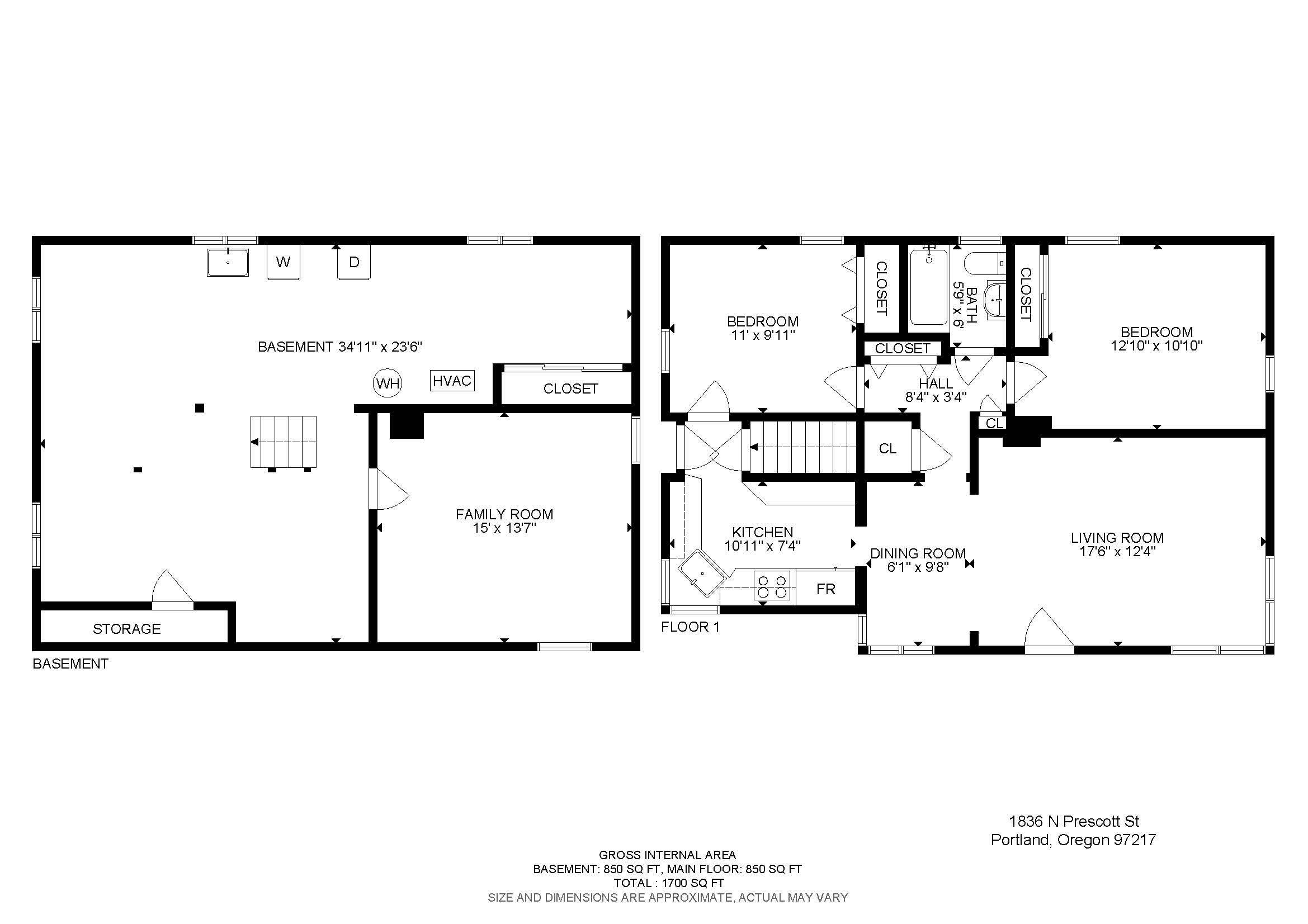
1836 N. Prescott St. | Portland, OR 97217

Offered at $499,000 | MLS # 560477113

2 Bedroom  |  1 Bath | 1,614 sq. ft.

Mid Century charm in the Overlook Triangle! Perched up off the street, this stunning property has curb appeal in spades. Step through the front door and notice original features like hardwood floors, a fun mail slot, a vintage speakeasy door hatch, and beautiful corner windows for capitalizing on sunlight all year long.

Enjoy cooking in the charming kitchen with vintage features that have been paired with modern appliances and a brand new sink and faucet. Two spacious bedrooms offer plenty of closet space and overlook the big backyard. Downstairs, find a clean full basement with an extra bonus room: it’s a quiet space for a home office, or a great place to hang with friends and jam.

Recent updates include a brand new electrical panel, a new roof, and fresh paint throughout, and the basement and attic offer plenty of room for storage or future expansion. HES=3

Matterport Tour

Kim Parmon

Principal Broker | Earth Advantage Certified | OR

She/Her

Kim Parmon Principal Broker  Lead Listing Agent Earth Advantage Certified | OR kim@livingroomre.com Oregon is the fifth state that Kim has called home in her life, and this one is sticking!  After moving multiple times in her childhood, Kim fully understands how empowering homeownership and having roots is.  She loves waking up every day in this beautiful place and wants everyone to experience what it feels like to live in their dream home. As a kid, Kim spent her free time wandering through open houses and exploring construction sites for the fun of it.  After careers in the professional ballroom dance world, the entertainment industry, and the service industry, Kim stumbled into real estate as both a passion and a profession through the purchase of her first bungalow.  After renovating it with her husband and selling it for enough of a profit to pay off their debt as well as buy a new house to live in, everything clicked: she decided to get her real estate license and help her community experience the emotional and financial benefits of homeownership.  Kim put down roots in Portland in 2015 and has cultivated a referrals-based business throughout the years.  She understands that real estate is a service and the experience she gives her clients is first-rate.  She works hard to anticipate needs.  She is responsive, thorough, empathic, and a skilled negotiator who enjoys market analytics and strategy as much as she enjoys connecting with her clients.  Her ethics and reputation are the cornerstones of her business and the happiness of her clients is the yardstick that she measures success against. Kim merged her business with the best agents in Portland at the beginning of 2022, which has allowed her to give her clients more resources, more advocacy, and a top-notch real estate experience.  She is honored to be a part of her incredible team and feels lucky to go to work every day. In her free time, you'll find Kim enjoying lazy evenings by the fire with her husband, daughter, and rescue dogs.  She loves dancing, live music, exploring all of the beautiful places around us in the PNW, enjoying a cider and a good meal with friends, and browsing Powell's for a great new book. Andee Ziegler  Licensed Broker Listing Operations Manager andee@livingroomre.com Loving where you live will change your life. Everyone deserves that joy. For me, real estate has been a way of nurturing my community and doing what I can to help people find stability, grow generational wealth, and create a little space of their own in the world. For 15 years I found the most joy in helping first-time homebuyers, guiding my peers through their first major investment and dreaming up what home means for them. I’ve done restoration work on homes from a variety of eras, 1894 Victorian farmhouse to classic 1950’s ranch. I enjoy empowering new homeowners with the knowledge I’ve garnered over the years, from systems to finishes.  In 2022 I joined forces with some of the best realtors in the biz and shifted my focus to operation management for listings. This welcome change opened up space in my life: more cake, less pants.   Andee Zeigler | Licensed Listing Operations Manager | andee@livingroomre.com Jessica LeDoux | Lead Buyer Agent | Broker Licensed in Oregon | jessica@livingroomre.com  Sofia Gallamore | Buyer Agent | Licensed in Oregon and Washington | sofi@livingroomre.com Karim Alaeddine | Operations | Principal Broker Licensed in Oregon | karim@livingroomre.com  Jenessa VanZutphen | Buyer Operations Manager | Licensed in Oregon | jenessa@livingroomre.com 
Read More

Contact Kim

You might also enjoy

What Does MLS Stand For & How Does It Work?

Jon Gould-Knight

You might have heard the term "MLS" thrown around when talking about real estate. Maybe you’ve seen abbreviations like RMLS or NWMLS. Maybe you’ve wondered how sites like Zillow actually get their data. So let’s talk about what the MLS actually is, why it exists, and why it matters to you.

Should I Use the Same Realtor to Buy and Sell a House?

Jon Gould-Knight

TL;DR Yes, you can absolutely use the same real estate agent to help you sell your...

Should I wait until mortgage rates drop before I buy?

Jon Gould-Knight

Nobody has a crystal ball, but most projections suggest mortgage rates will stay above 6% for the foreseeable future. Even if they do drop, it’s likely to be a gradual decline, not an overnight plunge.

How to buy a Duplex with FHA 3.5% Down Payment

Living Room Realty

By Sorcha Porter: Licensed Assistant to Shannon Dooley In a time where interest rates are high...

4 Ways to Make Money Off Your Home Without Being a Landlord

Living Room Realty

..Many people don't want to be landlords. Whether it's for ethical reasons or personal landlord-ing is not for everyone. But it doesn't mean you can't use your home to create a side hustle and generate passive or low/ work income.

Cute house with huge back yard!

Living Room Realty

I love all the trees especially the black walnut, fruit trees and raised garden beds. The...

Top Shelf in Tabor

Living Room Realty

1130 NE 64th Ave. Portland, OR 97213 Beautiful move-in ready home in North Tabor. Enjoy time...

🌺 Real Estate is Blooming this Spring Season! 🌷

Carrie Struss

There’s something about spring in the Pacific Northwest that makes everything feel full of possibility. Trees...

What It’s Really Like to Live on the Oregon Coast Year-Round

Todd Braden

Living Oregon Coast | Living Room Realty, Manzanita Everyone loves the Oregon Coast on a summer...

Be Yourself on Purpose with Jacob Weigel | Open House Podcast – Everday Excellence

Jenelle Etzel

Showing Up Fully in Every Room In real estate, it is easy to feel pressure to...

RENOVATED HOME ON 0.44 ACRES IN NEHALEM

Tosha Reinmiller

Overlooking the charming town of Nehalem & its scenic valley, this stunning 3 bedroom, 2 bathroom...